Thông số kỹ thuật 545.14.302.
• Thương hiệu: Hafele (Dòng Utensio Plus H2 / cookingAGENT).
• Xuất xứ: Trung Quốc (PRC).
• Chiều rộng tủ (phủ bì): 400 mm.
• Tải trọng tối đa: 16 kg (khoảng 8 kg mỗi khay).
• Chất liệu: Khung và ray bằng thép; khay đựng bằng nhựa PP cao cấp không độc hại.
• Màu sắc/Hoàn thiện: Màu xám than chì (RAL830-5), sơn tĩnh điện.
• Loại lắp đặt: Gắn mặt cánh cho tủ bếp dưới, bắt đáy tủ.
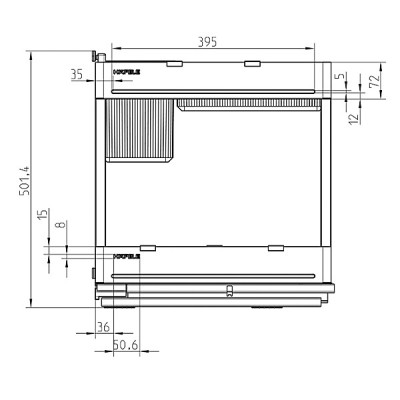
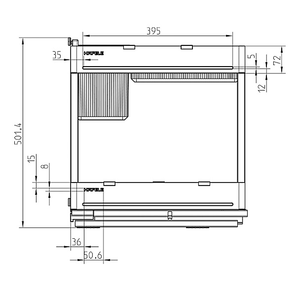
2. Kích thước lắp đặt chi tiết
• Kích thước sản phẩm: R350 x S466 x C458 mm
• Chiều sâu lọt lòng tủ tối thiểu: 500 mm.
• Chiều cao lọt lòng tủ tối thiểu: 560 mm.
3. Đặc tính kỹ thuật và Công năng
• Hệ thống ray trượt: Sử dụng ray trượt giảm chấn giúp đóng mở êm ái, đã qua kiểm định với 60.000 đến 66.000 chu kỳ hoạt động.
• Lớp phủ kháng khuẩn: Bề mặt được sơn phủ nano kết hợp i-on Ag+ giúp diệt khuẩn, ức chế sự phát triển của mầm bệnh và chống ăn mòn (vượt qua thử nghiệm phun muối từ 96 đến 300 giờ).
• Thiết kế linh hoạt: Các khay nhựa và thanh chia có thể thay đổi vị trí hoặc tháo rời hoàn toàn để vệ sinh dễ dàng (có thể dùng cho máy rửa bát).
• Tính ổn định: Trang bị tấm chống trượt giúp cố định chai lọ và dụng cụ nhà bếp khi thao tác đóng mở cánh tủ.
• Công dụng: Chuyên dùng để lưu trữ dao thớt, chai lọ gia vị, đồ khô, kể cả những chai dầu ăn loại lớn.
4. Thành phần đóng gói trọn bộ
Sản phẩm thường đi kèm các bộ phận sau để lắp đặt:
• 1 khung kéo và 1 khay rổ.
• Các khay nhựa (loại 300mm hoặc 400mm tùy bộ).
• 1 khay kim loại kèm thanh chia.
• 1 bộ bas liên kết mặt cánh (kẹp phía trước).
• 1 cặp ray trượt giảm chấn và bộ phụ kiện lắp đặt.
Nguyên đai nguyên kiện, đầy đủ phụ kiện từ nhà sản xuất.
Bảo hành chính hãng.
Giao hàng, lắp đặt miễn phí.